上荒屋2丁目B棟│新築│令和8年8月より入居可能

おすすめポイント

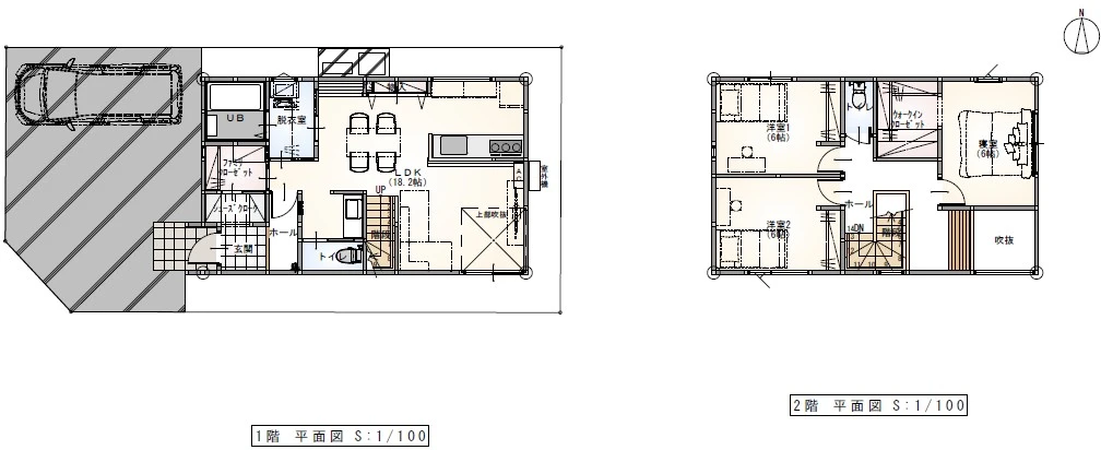
(B棟:画像右側)

金沢市上荒屋2丁目。大型商業施設のアークスクエアからも近く、
買い物・郵便局・コンビニなど生活に必要な施設が近くにそろっていて便利なエリアです。
IRいしかわ鉄道「野々市駅」にも近く日々の通勤・通学・お出かけにも便利でバランスの取れた立地が魅力です♪

外観デザインは、グレージュの塗壁に天然木のアクセントを組み合わせたシンプルながらも奥行きを感じさせるデザインです。

間取りは3LDK。LDKは18.2帖で、天井高も2.5mのため圧迫感なく過ごせます。
さらに吹抜があることで、帖数以上の開放感を感じられます。
吹抜の上部には2階の多目的スペースが隣接し家族とのつながりを感じながらも、
程よい距離感でリモートワークや読書スペースに活用できます。

玄関からシューズクローク、ファミリークローゼットを通ってLDKへとつながるスムーズな動線で帰宅後に靴を片づけ、
制服やランドセルをしまってからリビングへ向かえるので、自然と「片づく習慣」が身につきます。
お子さまとの外出や帰宅も、毎日がもっと快適になります。

敷地内は車3台分の駐車スペースを確保しており、2台並列+来客用など柔軟な使い分けが可能です。
閑静な街並みと利便性のバランスに優れた立地と、暮らしに寄り添う設計で、家時間がいっそう豊かになる住まいです。
住所
金沢市上荒屋2丁目133番2
築年月
令和8年7月完成予定(B棟:画像右側)
現況
令和8年7月完成予定(B棟:画像右側)
種目
宅地
価格
3,590 万円(税込)
引渡時期
令和8年8月頃
間取
3LDK
間取詳細
洋室+洋室+洋室+LDK+シューズクローク+ファミリークローゼット+ウォークインクローゼット
土地面積
115.11㎡(34.82坪)
建物面積
101.22㎡(30.61坪)
建ぺい率
60%│容積率 200%
構造
木造在来工法2階建
用途地域
第一種中高層住居専用地域
駐車場
3台(車種による)
小学校
三和小学校
中学校
西南部中学校
取引態様
仲介
設備
上下水道、オール電化
備考
前面道路:(西側)4.88m、(南側)5.95m/間口:8.18m(隅切部分含む) ■住宅性能  断熱性能:等級5(ZEH基準を満たす省エネ仕様)  耐震性能:等級3相当(建築基準法の1.5倍の耐震性能) ■標準仕様  LDKエアコン付き、照明器具付き